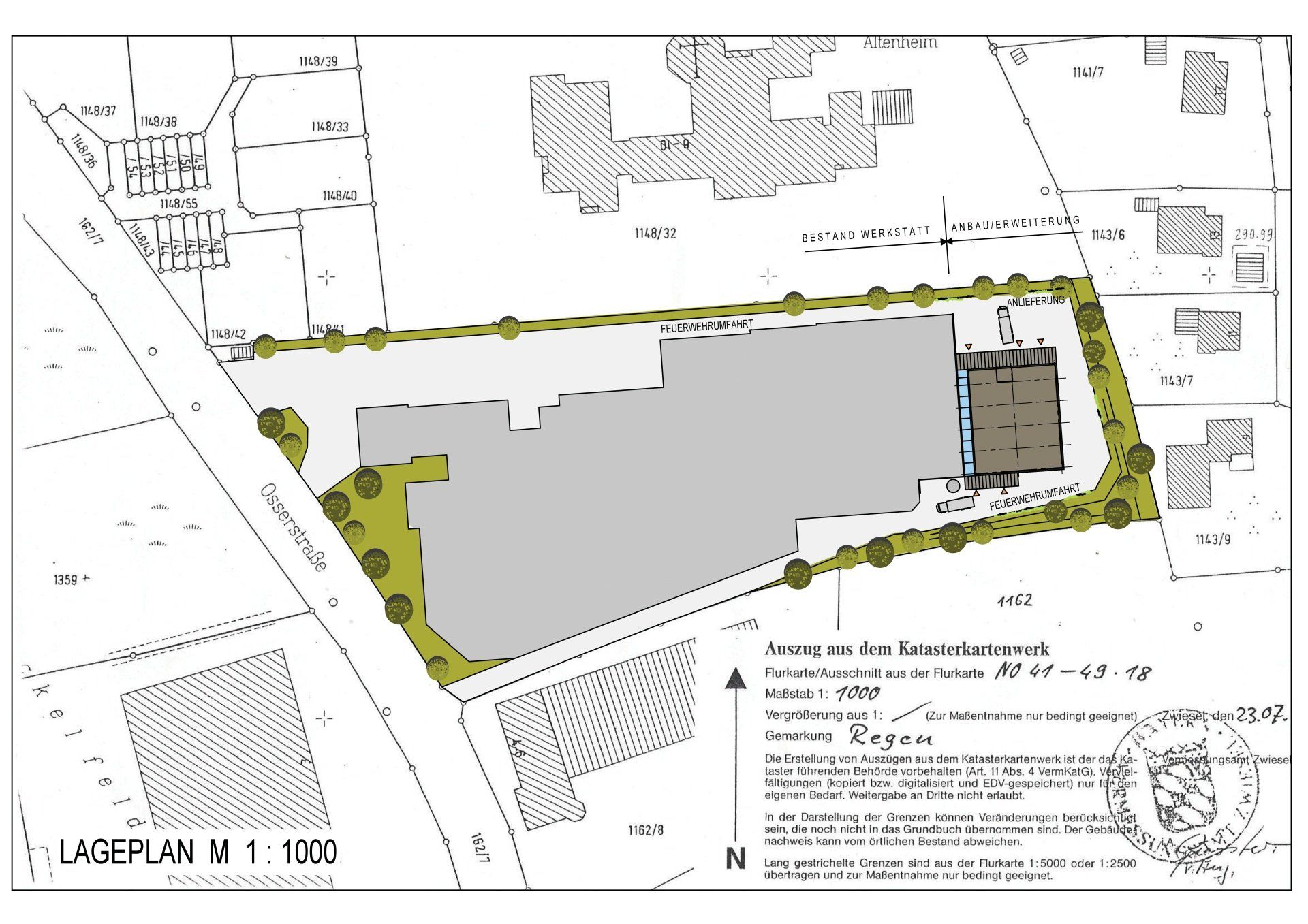
Erweiterung der Werkstatt für Behinderte Menschen in Regen
Baumaßnahme:
Erweiterung der Werkstatt für Behinderte Menschen in Regen
Bauherr:
Lebenshilfe Deggendorf e.V.
Leistungsumfang:
LP 1-2 Konzeptplanung
 
  
  
  
  
  
  
  
 Baumaßnahme:
Erweiterung der Werkstatt für Behinderte Menschen in Regen
Bauherr:
Lebenshilfe Deggendorf e.V.
Leistungsumfang:
LP 1-2 Konzeptplanung
Architekturbüro
artec -plan
Kontakt :
Mobil: 0152/01995358
Mail: artinger@artec-plan.de
Adresse :
Goben 6
94431 Pilsting