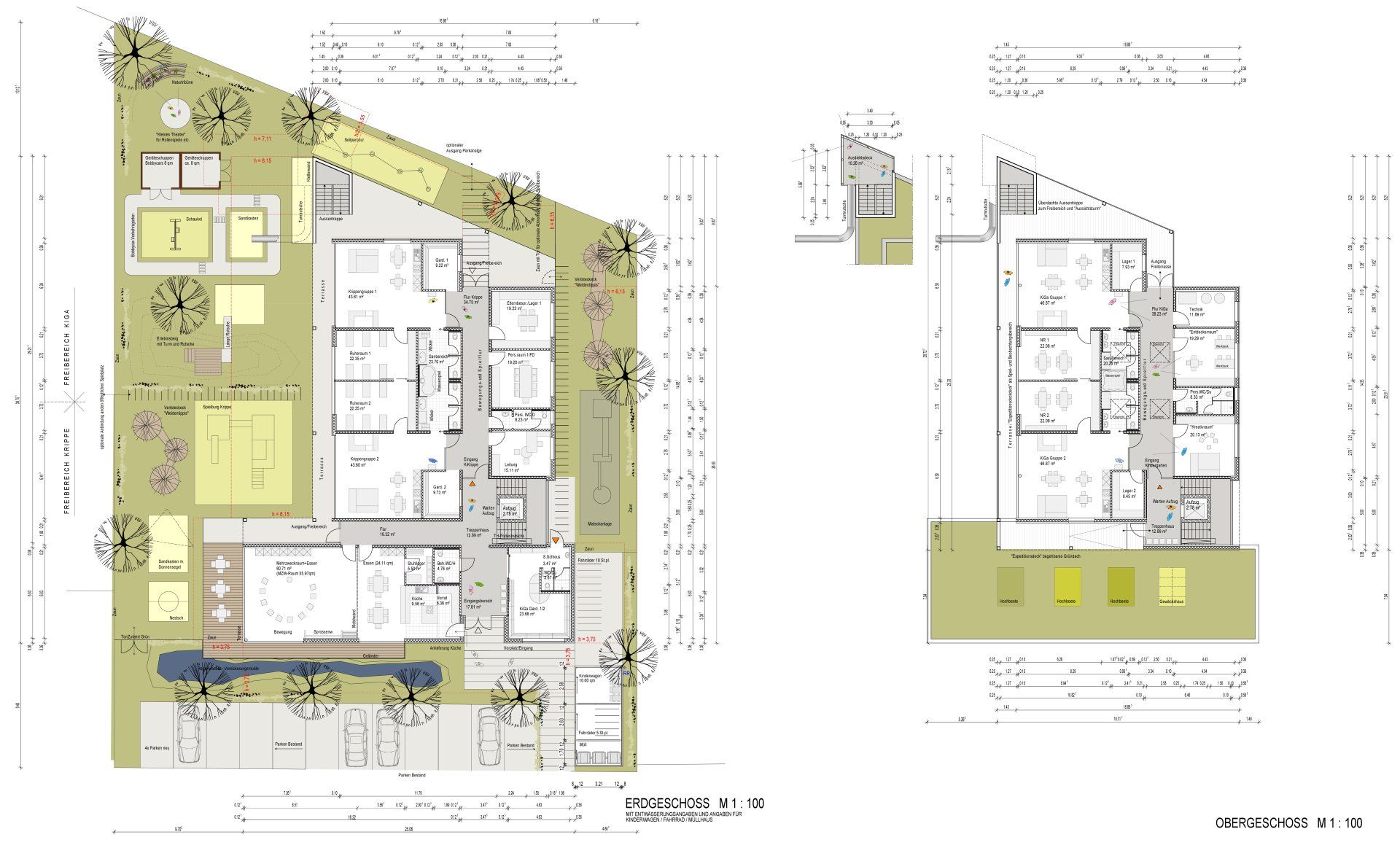
Neubau einer 4-gruppigen Kindertagesstätte in Bamberg
Baumaßnahme:
Neubau einer 4-gruppigen Kindertagesstätte in Bamberg
Bauherr:
Johanniter-Unfall-Hilfe e.V. Bamberg
Stadt Bamberg
Leistungsumfang:
LP 1-9
Baubeginn:
Mai 2020
 
  
  
  
  
  
  
  
  
  
  
  
  
  
  
  
 Baumaßnahme:
Neubau einer 4-gruppigen Kindertagesstätte in Bamberg
Bauherr:
Johanniter-Unfall-Hilfe e.V. Bamberg
Stadt Bamberg
Leistungsumfang:
LP 1-9
Baubeginn:
Mai 2020
Architekturbüro
artec -plan
Kontakt :
Mobil: 0152/01995358
Mail: artinger@artec-plan.de
Adresse :
Goben 6
94431 Pilsting